什么是一階HDI,二階HDI PCB?
1、壓合一次后鉆孔==》外面再壓一次銅箔==》再鐳射--------》一階
2、壓合一次后鉆孔==》外面再壓一次銅箔==》再鐳射,鉆孔==》外層再壓一次銅箔==》再鐳射-------》二階。主要就是看你鐳射的次數是幾次,就是幾階了。
下面簡單介紹一下PCB板的HDI流程。 基本知識及制作流程 隨著電子行業日新月異的變化,電子產品向著輕、薄、短、小型化發展,相應的印制板也面臨高精度、細線化、高密度的挑戰。全球市場印制板的趨勢是在高密度互連產品中引入盲、埋孔,從而更有效的節省空間,使線寬、線間距更細更窄。
一.HDI定義
HDI:high Density interconnection的簡稱,高密度互連,非機械鉆孔,微盲孔孔環在6mil以下,內外層層間布線線寬/線隙在4mil以下,焊盤直徑不大于0.35mm的增層法多層板制作方式稱之為HDI板。盲孔:Blind via的簡稱,實現內層與外層之間的連接導通 埋孔:Buried via的簡稱,實現內層與內層之間的連接導通 盲進孔大都是直徑為0.05mm~0.15mm的小孔,埋盲孔成孔方式有激光成孔,等離子蝕孔和光致成孔,通常采用激光成孔,而激光成孔又分為CO2和YAG紫外激光機(UV)。
二.HDI板板料
1、HDI板板料有RCC,LDPE,FR4 1)RCC:Resin coated copper的簡稱,涂樹脂銅箔。RCC是由表面經粗化、耐熱、防氧化等處理的銅箔和樹脂組成的,其結構如下圖所示:(厚度>4mil時使用)RCC的樹脂層,具備與FR一4粘結片(Prepreg)相同的工藝性。此外還要滿足積層法多層板的有關性能要求,如:
(1)高絕緣可靠性和微導通孔可靠性;
(2)高玻璃化轉變溫度(Tg);
(3)低介電常數和低吸水率;
(4)對銅箔有較高的粘和強度;
(5)固化后絕緣層厚度均勻
同時,因為RCC是一種無玻璃纖維的新型產品,有利于激光、等離子體的蝕孔處理,有利于多層板的輕量化和薄型化。另外,涂樹脂銅箔具有12pm,18pm等薄銅箔,容易加工。2)LDPE:
3)FR4板料:厚度<=4mil時使用。使用PP時一般采用1080,盡量不要使用到2116的PP 2.銅箔要求:當客戶無要求時,基板上銅箔在傳統PCB內層優先采用1 OZ,HDI板優先使用HOZ,內外電鍍層銅箔優先使用1/3 OZ。
三.鐳射成孔:
CO2及YAG UV激光成孔 鐳射成孔的原理:鐳射光是當“射線”受到外來的刺激,而增大能量下所激發的一種強力光束,其中紅外光或可見光者擁有熱能,紫外光則另具有化學能。射到工作物表面時會發生反射(Refliction)吸收(Absorption)及穿透(Transmission)等三種現象,其中只有被吸收者才會發生作用。而其對板材所產生的作用又分為光熱燒蝕與光化裂蝕兩種不同的反應。
1.YAG的UV激光成孔:可以聚集微小的光束,且銅箔吸收率比較高,可以除去銅箔,可燒至4mil以下的微盲孔,與CO2激光成孔在孔底會殘留樹脂相比其孔底基本不會殘留有樹脂,但卻容易傷孔底的銅箔,單個脈沖的能量很少,加工效率低。(YAG、UV:波長:355的,波長相當短,可以加工很小的孔,可以被樹脂和銅同時吸)不需要專門的開窗工藝
2.CO2激光成孔:采用紅外線的CO2鐳射機,CO2不能被銅吸收,但能吸收樹脂和玻璃纖維,一般4~6mil的微盲孔。
其成孔方式如下:
A.開銅窗法Conformal Mask是在內層Core板上先壓RCC然后開銅窗,再以鐳射光燒除窗內的基材即可完成微盲孔。詳情是先做FR-4的內層核心板,使其兩面具有已黑化的線路與靶標(Target Pad),然后再壓合,接著根據蝕銅窗菲林去除盲孔位置對應銅皮再利用CO2鐳射光燒掉窗內的樹脂,即可挖空到底墊而成微盲孔。(銅窗與盲孔大小一致)此法原為“日立制作所”的專利,一般業者若要出貨到日本市場時,可能要小心法律問題。
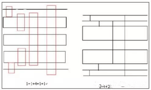
B.開大銅窗法Large Conformal mask所謂“開大窗法”是將銅窗擴大到比盲孔單邊大1mil左右。一般若孔徑為6mil時,其大窗口可開到8mil。鐳射鉆孔盲埋孔作業流程以1+2+1為例講解(下圖為其圖示)

制作流程:開料--->開大銅窗--->鉆L2-L3埋孔--->除膠渣--->電鍍埋孔--->樹脂塞孔--->內層圖形--->L1-2&L4-3大開窗(銅窗比盲孔孔徑大1mil)(蝕刻)--->L1-2&L4-3層鐳射鉆盲孔--->除膠渣兩次--->電鍍盲孔(脈沖電鍍)--->樹脂塞孔--->磨板+減銅--->機械鉆孔--->正常流程 2+4+2流程 開料--->L3-6層圖形--->壓合--->開大銅窗--->L2-3&L7-6層埋孔--->L2-6機械鉆孔--->除膠渣--->電鍍埋孔--->樹脂塞孔--->L2,L7層圖形--->壓合--->開大銅窗--->L1-2&L8-7開窗--->除膠渣--->電鍍塞孔--->磨板+減銅--->機械鉆孔--->正常流程

ps:部分圖片來源于網絡,如有侵權,請聯系我們刪除
最新產品
通訊手機HDI
-

-
型號:GHS08K03479A0
階數:8層二階
板材:EM825
板厚:0.8mm
尺寸:144.08mm*101mm
最小線寬:0.075mm
最小線距:0.075mm
最小孔徑:0.1mm
表面處理:沉金+OSP
通訊手機HDI
-

-
型號:GHS06C03294A0
階數:6層二階
板材:EM825
板厚:1.0mm
尺寸:92mm*118mm
最小線寬:0.075mm
最小線距:0.075mm
最小孔徑:0.1mm
表面處理:沉金
通訊模塊HDI
-

-
型號:GHS04K03404A0
階數:4層一階+半孔
板材:EM825
板厚:0.6mm
尺寸:94.00*59.59mm
最小線寬:0.076mm
最小線距:0.076mm
最小孔徑:0.1mm
表面處理:沉金+OSP
5G模塊PCB
P1.5顯示屏HDI
-

-
型號:GHS04C03605A0
層數:4層一階
所用板材:EM825
板厚:1.6mm
尺寸:24mm*116mm
最小盲孔:0.1mm
最小埋孔:0.2mm
最小線寬:0.13mm
最小線距:0.097mm
表面處理:沉金
外形公差:+0.05/-0.15mm(板內無定位孔)
特殊要求:燈窩間距:P1.5
P2.571顯示屏HDI
-

-
型號:GHS04C03429A0
階層:4層一階
板材:EM825
板厚:1.6mm
尺寸:215.85mm*287.85mm
最小盲孔:0.1mm
最小埋孔:0.2mm
最小線寬:0.152mm
最小線距:0.152mm
表面處理:沉金
外形公差:+/-0.15mm(板內無定位孔)
特殊要求:控深鉆帽子電鍍間距:P2.571
P1.9顯示屏HDI
-

-
型號:GHM08C03113A0
階層:8層一階
板材:EM825
板厚:1.6mm
尺寸:239.9mm*239.9mm
最小盲孔:0.1mm
最小埋孔:0.2mm
最小線寬:0.127mm
最小線距:0.127mm
表面處理:沉金
外形公差:+0.05/-0.15mm(板內無定位孔)
特殊要求:控深鉆間距:P1.9
P1.923顯示屏HDI
同類文章排行
- 2017年度中國電子電路板PCB百強企業排行榜
- 2017全球PCB制造企業百強排行榜
- 2014年線路板廠綜合排名——你必須知道!
- 世界頂級電路板廠商排行榜
- HDI廠之2015全球百大PCB企業榜單出爐,中國大陸PCB企業占34家!
- HDI PCB的應用及其優勢
- 看4G與5G基站電路板需求對比
- 實拍贛州深聯線路板廠生產車間,PCB全流程驚艷你的視野
- 2018年電路板行業原材料漲價潮又要開始了
- 電路板廠教你快速識別PCB綠色產品標識
最新資訊文章
- HDI 板行業趨勢洞察:未來之路在何方?
- 一個卓越的電路板廠需要具備哪些關鍵條件?
- PCB 廠憑啥能成為電子產業的 “幕后英雄” ?
- 未來 PCB 將迎來哪些顛覆性突破?
- 綠色環保趨勢下,汽車軟硬結合板材料如何革新?
- PCB 行業未來十年,將迎來哪些顛覆性變革?
- 智能化浪潮下,汽車軟硬結合板如何賦能智能駕駛?
- 未來電路板會在物聯網應用中有何新突破?
- 軟硬結合板憑什么在汽車電子中備受青睞?
- 手機無線充線路板的未來發展方向在哪?







共-條評論【我要評論】